• Hogar
  • Noticias
  • Métodos de pago
  • revendedores
  • Productores
  • Contactos
  • Área de revendedores
  • Área privada
  • Carro
    • Italiano
    • English
    • Français
    • Español
    • Deutsch
0119625393
info@indoorline.com
Encuentra tu IndoorlinePoint
Búsqueda avanzada
0 Carro
tu carrito: €0,00

    No tienes productos en tu carrito

Catalogo
  • Hogar
  • Noticias
  • Métodos de pago
  • revendedores
  • Productores
  • Contactos
Todas las categorías
HEADSHOP
ACCESORIOS DE HEADSHOP
BASCULAS
ENCENDEDORES DE BUTANO DE ALTA PRESIÓN
LIMPIEZA
OCULTACIÓN
EXTRACCIÓN
EXTRACCIÓN CON HIELO
EXTRACCIÓN DE GAS
EXTRACCIÓN EN SECO Y DRY SIFT
EXTRACCIÓN ROSIN
ACCESORIOS ROSIN
EXTRACTORES Y DECARBOXILADORES BOTÁNICOS
ACCESORIOS
PET CARE
DISPOSITIVOS DE SEGURIDAD PERSONAL
METHOD SEVEN GAFAS DE PROTECCIÓN
FILTROS PARA CELULARES Y CÁMARAS
GAFAS PARA LED
GAFAS PARA LÁMPARAS HPS
GAFAS PARA LÁMPARAS MH
GAFAS DE SOL
LIBROS
ROPA Y MERCANCÍA
COSMÉTICOS, ACEITES Y HIERBAS
MIX YERBAS-POTPOURRI
FERTILIZANTES
BOOSTER DEL CRECIMIENTO Y LA FLORACIÓN
CORRECTORES DE pH
ESTIMULANTES PARA ENRAIZAMIENTO Y ESQUEJES
FERTILIZANTES DE SUELO
FERTILIZANTES EN POLVO
FERTILIZANTES ORGÁNICOS Y VEGANOS
FERTILIZANTES PARA COCO
FERTILIZANTES PARA HIDROPONÍA
FERTILIZANTES PARA ORQUÍDEAS Y BONSÁIS
FERTILIZANTES PARA TODOS LOS SUSTRATOS
MICORRIZAS Y BIOESTIMULANTES
GERMINACIÓN Y ESQUEJES
ACCESORIOS PARA LA PRODUCCIÓN DE CORTE
CALEFACCIÓN TIERRA/AIRE
FERTILIZANTES PARA ENRAIZAMIENTO Y ESQUEJES
ILUMINACIÓN PARA GERMINACIÓN Y ESQUEJES
MACETAS DE TURBA
MINI INVERNADEROS
SUSTRATOS PARA SIEMBRA Y TRASPLANTE
GROWBOX Y GROWROOM
SECRET JARDIN
GROWBOX SECRET JARDIN
ACCESORIOS SECRET JARDIN
PIEZAS DE REPUESTO SECRET JARDIN
DARK BOX
CULTIBOX
MAMMOTH TENTS
HOMEBOX
ACCESORIOS PARA GROWBOX
HOJAS REFLEXIVAS
INVERNADEROS DE JARDÍN
LABORATORIOS PREFABRICADOS
HIDROPONÍA Y RIEGO
RIEGO
BIDONES Y TANQUES
BOMBAS DE AGUA Y AIRE
BOMBAS DE AGUA
BOMBAS DE AIRE
COMPONENTES DE RIEGO
GOTEROS Y DISPENSADORES
TUBERÍAS Y ACCESORIOS
FILTROS DE PURIFICACIÓN DE AGUA
HIDROGRÁNULOS
MESAS Y BANDEJAS ESCURRIDORES
SISTEMAS AUTOMÁTICOS DE DOSIFICACIÓN Y REGULACIÓN DE pH Y CE
SISTEMAS DE RIEGO COMPLETOS
UNIDADES DE CONTROL DE RIEGO
SISTEMAS HIDROPÓNICOS Y AEROPÓNICOS
ACCESORIOS Y REPUESTOS PARA HIDROPONÍA
AEROPONÍA - SISTEMAS Y PROPAGADORES
FILTROS DE ROSMOSIS
HIDROPONÍA - SISTEMAS AUTOPOT
HIDROPONÍA - SISTEMAS DE FLUJO Y REFLUJO
HIDROPONÍA - SISTEMAS EBB'N FLOOD E DWC
HIDROPONÍA - SISTEMAS NFT
REFRIGERACIÓN Y CALEFACCIÓN DE AGUA
ILUMINACIÓN Y TEMPORIZADOR
ILUMINACIÓN
LED
ACCESORIOS Y REPUESTOS LED
ACCESORIOS Y REPUESTOS DE ILUMINACIÓN
BALASTRO PARA LÁMPARAS
BALASTOS ELECTROMAGNÉTICOS
BALASTOS ELECTRÓNICOS
BOMBILLAS HPS, MH E CMH/LEC
CMH / LEC
HPS CRECIMIENTO Y FLORACIÓN
HPS FLORACIÓN
MH CRECIMIENTO
LÁMPARAS FLUORESCENTES CFL
PANTALLAS REFLECTANTES
SISTEMAS COMPLETOS DE ILUMINACIÓN DE DESCARGA
ACCESORIOS Y REPUESTOS PARA SISTEMAS COMPLETOS DE ILUMINACIÓN DE DESCARGA
TEMPORIZADOR Y CONTROLADOR
CONTROLADOR DE ILUMINACIÓN
CUADROS ELÉCTRICOS MULTILÁMPARA
TEMPORIZADORES MECÁNICOS Y DIGITALES ENCHUFABLES
INSTRUMENTOS DE MEDICIÓN
MEDICION DE EC/TDS
MEDICIÓN DE LÍQUIDOS
MEDICIÓN DE LUZ - PPDF Y LUX
MEDICION DE pH
MEDICIÓN DE TEMPERATURA Y HUMEDAD
MEDICIÓN MULTIPARÁMETRO pH/CE/TDS/TEMP/HUMEDAD/CO2
MICROSCOPIOS
SOLUCIONES DE CALIBRACIÓN Y ALMACENAMIENTO
SONDAS, ELECTRODOS Y REPUESTOS
KIT DE CULTIVO
VERTICAL FARM
KIT DE ASPIRACIÓN
KIT DE ILUMINACIÓN
KITS DE CULTIVO COMPLETOS
MACETAS Y BANDEJAS
BANDEJAS CUADRADAS
MACETAS EN GEOTEXTIL
MACETAS DE TURBA BIODEGRADABLES
MACETAS DECORATIVOS Y DE JARDÍN
MACETAS EN PLASTICO
MACETAS PANDORA'S POT
MACETAS TROQUELADAS NET POT PARA HIDROPONÍA
VASOS ANTIESPIRALIZANTES
PRODUCTOS DE DEFENSA PARA PLANTAS
BOMBAS DE PRESIÓN Y PULVERIZADORES
CONTROL BIOLÓGICO INTEGRADO
INSECTOS AUXILIARES
TRAMPAS ADHESIVAS CROMOTRÓPICAS
TRAMPAS PARA INSECTOS DAÑINOS
DEFENSA DE LAS PLANTAS
DEHABITANTES Y REPELENTES
DESINFECTANTES
INSECTICIDAS P.P.O.
DESINFECCIÓN UV-C
UV-C PARA AGUA
UV-C PARA AIRE
UV-C PARA PLANTAS Y SUPERFICIES
HOMEOPATÍA PARA PLANTAS
SEMILLAS
SEMILLAS DE HUERTO
ACMELLA
BIENESTAR Y SABOR
SEMILLAS AROMÁTICAS
SEMILLAS DE HORTALIZAS
SEMILLAS ORGÁNICAS
SEMILLAS ORNAMENTALES
SUELOS, SUSTRATOS Y CUBIERTAS VERDES
FERTILIZANTES Y ENMIENDAS EN POLVO
PALETS Y BIG BAGS
SUSTRATOS
LIGHT
FECUNDADO
SUSTRATOS INERTES
AGRIPERLITA
ARCILLA EXPANDIDA
LANA DE ROCA
TECHO VERDE
TIPO DE CULTIVO
COCCO
HIDROPONÍA Y AEROPONÍA
SIEMBRA Y TRASPLANTE
TRATAMIENTO DE AIRE Y CLIMATIZACIÓN
CONTROL CLIMÁTICO
CO2
ACONDICIONADORES DE AIRE
AFICIONADOS Y DESTRATIFICACIONES
CALEFACCIÓN DE TIERRA Y AIRE
DESHUMIDIFICADORES
HUMIDIFICADORES
UNIDADES DE CONTROL Y REGULADORES DE VELOCIDAD
SENSORES Y REPUESTOS PARA UNIDADES DE CONTROL
CONTROL DE OLORES
ANTI-OLOR
FILTROS DE CARBÓN ACTIVADO
OZONIZADORES Y PURIFICADORES
EXTRACTORES Y ASPIRADORES
ASPIRADORES CENTRÍFUGOS
ASPIRADORES HELICOIDALES
ASPIRADORES SILENCIOSOS
UNIDADES EXTRACTORAS INSONORIZADAS Y EN CAJA
TUBOS Y ACCESORIOS
FILTROS DE ADMISIÓN DE AIRE
REDUCTORES, ACCESORIOS Y ABRAZADERAS DE MANGUERA
SILENCIADORES
TUBOS FLEXIBLES
TUBOS DE PLÁSTICO FLEXIBLES
TUBOS FLEXIBLES DE ALUMINIO
TUBOS ABSORCIÓN ACÚSTICA FLEXIBLE
TUBOS CALCETINES DE AIRE FLEXIBLES
TUBOS DE PLÁSTICO Y ALUMINIO COMBICONNECT
VÁLVULAS PARA TUBERÍAS
TRIMMER,SECADO Y CONSERVACIÓN
TRIMMER
REPUESTOS Y ACCESORIOS PARATRIMMER
TRIMMER AUTOMÁTICO
TRIMMER DESFOLIANTES DE MESA Y ELÉCTRICOS
TRIMMER MANUALES Y TIJERAS DE PODA
BUCKER Y DESMINADORES
CONSERVACIÓN
SECADO Y LIOFILIZACIÓN DE VEGETALES
TRIMMER Y EQUIPOS CON CERTIFICACIÓN GMP
UNIDADES DE CONTROL Y AUTOMATIZACIÓN
SENSORES Y REPUESTOS PARA UNIDADES DE CONTROL
SENSORES Y REPUESTOS DIMLUX
SENSORES Y REPUESTOS GSE
SENSORES Y REPUESTOS NIDO PRO
SENSORES Y REPUESTOS PROSYSTEM AQUA
SENSORES Y REPUESTOS TROLMASTER
UNIDADES DE CONTROL DE CLIMATIZACIÓN
UNIDADES DE CONTROL DE RIEGO Y FERTIRRIGACIÓN
UNIDADES DE CONTROL DE TIEMPO E ILUMINACIÓN
UNIDADES DE CONTROL REMOTO
  • navegar por categoría
    • HEADSHOP
    • ACCESORIOS
    • COSMÉTICOS, ACEITES Y HIERBAS
    • FERTILIZANTES
    • GERMINACIÓN Y ESQUEJES
    • GROWBOX Y GROWROOM
    • HIDROPONÍA Y RIEGO
    • ILUMINACIÓN Y TEMPORIZADOR
    • INSTRUMENTOS DE MEDICIÓN
    • KIT DE CULTIVO
    • MACETAS Y BANDEJAS
    • PRODUCTOS DE DEFENSA PARA PLANTAS
    • SEMILLAS
    • SUELOS, SUSTRATOS Y CUBIERTAS VERDES
    • TRATAMIENTO DE AIRE Y CLIMATIZACIÓN
    • TRIMMER,SECADO Y CONSERVACIÓN
    • UNIDADES DE CONTROL Y AUTOMATIZACIÓN
    • Hogar
    • Catalogar
      • GROWBOX Y GROWROOM
        • SECRET JARDINDARK BOXCULTIBOXMAMMOTH TENTSHOMEBOXACCESORIOS PARA GROWBOXHOJAS REFLEXIVASINVERNADEROS DE JARDÍNLABORATORIOS PREFABRICADOS
      • LABORATORIOS PREFABRICADOS
      • INDOORLINE - NIMA - MOBILFARM ONE WHEELS GROWROOM PREFABRICADO SOBRE RUEDAS | 750x250x240h cm
Búsqueda avanzada
Todas las categorías
HEADSHOP
ACCESORIOS DE HEADSHOP
BASCULAS
ENCENDEDORES DE BUTANO DE ALTA PRESIÓN
LIMPIEZA
OCULTACIÓN
EXTRACCIÓN
EXTRACCIÓN CON HIELO
EXTRACCIÓN DE GAS
EXTRACCIÓN EN SECO Y DRY SIFT
EXTRACCIÓN ROSIN
ACCESORIOS ROSIN
EXTRACTORES Y DECARBOXILADORES BOTÁNICOS
ACCESORIOS
PET CARE
DISPOSITIVOS DE SEGURIDAD PERSONAL
METHOD SEVEN GAFAS DE PROTECCIÓN
FILTROS PARA CELULARES Y CÁMARAS
GAFAS PARA LED
GAFAS PARA LÁMPARAS HPS
GAFAS PARA LÁMPARAS MH
GAFAS DE SOL
LIBROS
ROPA Y MERCANCÍA
COSMÉTICOS, ACEITES Y HIERBAS
MIX YERBAS-POTPOURRI
FERTILIZANTES
BOOSTER DEL CRECIMIENTO Y LA FLORACIÓN
CORRECTORES DE pH
ESTIMULANTES PARA ENRAIZAMIENTO Y ESQUEJES
FERTILIZANTES DE SUELO
FERTILIZANTES EN POLVO
FERTILIZANTES ORGÁNICOS Y VEGANOS
FERTILIZANTES PARA COCO
FERTILIZANTES PARA HIDROPONÍA
FERTILIZANTES PARA ORQUÍDEAS Y BONSÁIS
FERTILIZANTES PARA TODOS LOS SUSTRATOS
MICORRIZAS Y BIOESTIMULANTES
GERMINACIÓN Y ESQUEJES
ACCESORIOS PARA LA PRODUCCIÓN DE CORTE
CALEFACCIÓN TIERRA/AIRE
FERTILIZANTES PARA ENRAIZAMIENTO Y ESQUEJES
ILUMINACIÓN PARA GERMINACIÓN Y ESQUEJES
MACETAS DE TURBA
MINI INVERNADEROS
SUSTRATOS PARA SIEMBRA Y TRASPLANTE
GROWBOX Y GROWROOM
SECRET JARDIN
GROWBOX SECRET JARDIN
ACCESORIOS SECRET JARDIN
PIEZAS DE REPUESTO SECRET JARDIN
DARK BOX
CULTIBOX
MAMMOTH TENTS
HOMEBOX
ACCESORIOS PARA GROWBOX
HOJAS REFLEXIVAS
INVERNADEROS DE JARDÍN
LABORATORIOS PREFABRICADOS
HIDROPONÍA Y RIEGO
RIEGO
BIDONES Y TANQUES
BOMBAS DE AGUA Y AIRE
BOMBAS DE AGUA
BOMBAS DE AIRE
COMPONENTES DE RIEGO
GOTEROS Y DISPENSADORES
TUBERÍAS Y ACCESORIOS
FILTROS DE PURIFICACIÓN DE AGUA
HIDROGRÁNULOS
MESAS Y BANDEJAS ESCURRIDORES
SISTEMAS AUTOMÁTICOS DE DOSIFICACIÓN Y REGULACIÓN DE pH Y CE
SISTEMAS DE RIEGO COMPLETOS
UNIDADES DE CONTROL DE RIEGO
SISTEMAS HIDROPÓNICOS Y AEROPÓNICOS
ACCESORIOS Y REPUESTOS PARA HIDROPONÍA
AEROPONÍA - SISTEMAS Y PROPAGADORES
FILTROS DE ROSMOSIS
HIDROPONÍA - SISTEMAS AUTOPOT
HIDROPONÍA - SISTEMAS DE FLUJO Y REFLUJO
HIDROPONÍA - SISTEMAS EBB'N FLOOD E DWC
HIDROPONÍA - SISTEMAS NFT
REFRIGERACIÓN Y CALEFACCIÓN DE AGUA
ILUMINACIÓN Y TEMPORIZADOR
ILUMINACIÓN
LED
ACCESORIOS Y REPUESTOS LED
ACCESORIOS Y REPUESTOS DE ILUMINACIÓN
BALASTRO PARA LÁMPARAS
BALASTOS ELECTROMAGNÉTICOS
BALASTOS ELECTRÓNICOS
BOMBILLAS HPS, MH E CMH/LEC
CMH / LEC
HPS CRECIMIENTO Y FLORACIÓN
HPS FLORACIÓN
MH CRECIMIENTO
LÁMPARAS FLUORESCENTES CFL
PANTALLAS REFLECTANTES
SISTEMAS COMPLETOS DE ILUMINACIÓN DE DESCARGA
ACCESORIOS Y REPUESTOS PARA SISTEMAS COMPLETOS DE ILUMINACIÓN DE DESCARGA
TEMPORIZADOR Y CONTROLADOR
CONTROLADOR DE ILUMINACIÓN
CUADROS ELÉCTRICOS MULTILÁMPARA
TEMPORIZADORES MECÁNICOS Y DIGITALES ENCHUFABLES
INSTRUMENTOS DE MEDICIÓN
MEDICION DE EC/TDS
MEDICIÓN DE LÍQUIDOS
MEDICIÓN DE LUZ - PPDF Y LUX
MEDICION DE pH
MEDICIÓN DE TEMPERATURA Y HUMEDAD
MEDICIÓN MULTIPARÁMETRO pH/CE/TDS/TEMP/HUMEDAD/CO2
MICROSCOPIOS
SOLUCIONES DE CALIBRACIÓN Y ALMACENAMIENTO
SONDAS, ELECTRODOS Y REPUESTOS
KIT DE CULTIVO
VERTICAL FARM
KIT DE ASPIRACIÓN
KIT DE ILUMINACIÓN
KITS DE CULTIVO COMPLETOS
MACETAS Y BANDEJAS
BANDEJAS CUADRADAS
MACETAS EN GEOTEXTIL
MACETAS DE TURBA BIODEGRADABLES
MACETAS DECORATIVOS Y DE JARDÍN
MACETAS EN PLASTICO
MACETAS PANDORA'S POT
MACETAS TROQUELADAS NET POT PARA HIDROPONÍA
VASOS ANTIESPIRALIZANTES
PRODUCTOS DE DEFENSA PARA PLANTAS
BOMBAS DE PRESIÓN Y PULVERIZADORES
CONTROL BIOLÓGICO INTEGRADO
INSECTOS AUXILIARES
TRAMPAS ADHESIVAS CROMOTRÓPICAS
TRAMPAS PARA INSECTOS DAÑINOS
DEFENSA DE LAS PLANTAS
DEHABITANTES Y REPELENTES
DESINFECTANTES
INSECTICIDAS P.P.O.
DESINFECCIÓN UV-C
UV-C PARA AGUA
UV-C PARA AIRE
UV-C PARA PLANTAS Y SUPERFICIES
HOMEOPATÍA PARA PLANTAS
SEMILLAS
SEMILLAS DE HUERTO
ACMELLA
BIENESTAR Y SABOR
SEMILLAS AROMÁTICAS
SEMILLAS DE HORTALIZAS
SEMILLAS ORGÁNICAS
SEMILLAS ORNAMENTALES
SUELOS, SUSTRATOS Y CUBIERTAS VERDES
FERTILIZANTES Y ENMIENDAS EN POLVO
PALETS Y BIG BAGS
SUSTRATOS
LIGHT
FECUNDADO
SUSTRATOS INERTES
AGRIPERLITA
ARCILLA EXPANDIDA
LANA DE ROCA
TECHO VERDE
TIPO DE CULTIVO
COCCO
HIDROPONÍA Y AEROPONÍA
SIEMBRA Y TRASPLANTE
TRATAMIENTO DE AIRE Y CLIMATIZACIÓN
CONTROL CLIMÁTICO
CO2
ACONDICIONADORES DE AIRE
AFICIONADOS Y DESTRATIFICACIONES
CALEFACCIÓN DE TIERRA Y AIRE
DESHUMIDIFICADORES
HUMIDIFICADORES
UNIDADES DE CONTROL Y REGULADORES DE VELOCIDAD
SENSORES Y REPUESTOS PARA UNIDADES DE CONTROL
CONTROL DE OLORES
ANTI-OLOR
FILTROS DE CARBÓN ACTIVADO
OZONIZADORES Y PURIFICADORES
EXTRACTORES Y ASPIRADORES
ASPIRADORES CENTRÍFUGOS
ASPIRADORES HELICOIDALES
ASPIRADORES SILENCIOSOS
UNIDADES EXTRACTORAS INSONORIZADAS Y EN CAJA
TUBOS Y ACCESORIOS
FILTROS DE ADMISIÓN DE AIRE
REDUCTORES, ACCESORIOS Y ABRAZADERAS DE MANGUERA
SILENCIADORES
TUBOS FLEXIBLES
TUBOS DE PLÁSTICO FLEXIBLES
TUBOS FLEXIBLES DE ALUMINIO
TUBOS ABSORCIÓN ACÚSTICA FLEXIBLE
TUBOS CALCETINES DE AIRE FLEXIBLES
TUBOS DE PLÁSTICO Y ALUMINIO COMBICONNECT
VÁLVULAS PARA TUBERÍAS
TRIMMER,SECADO Y CONSERVACIÓN
TRIMMER
REPUESTOS Y ACCESORIOS PARATRIMMER
TRIMMER AUTOMÁTICO
TRIMMER DESFOLIANTES DE MESA Y ELÉCTRICOS
TRIMMER MANUALES Y TIJERAS DE PODA
BUCKER Y DESMINADORES
CONSERVACIÓN
SECADO Y LIOFILIZACIÓN DE VEGETALES
TRIMMER Y EQUIPOS CON CERTIFICACIÓN GMP
UNIDADES DE CONTROL Y AUTOMATIZACIÓN
SENSORES Y REPUESTOS PARA UNIDADES DE CONTROL
SENSORES Y REPUESTOS DIMLUX
SENSORES Y REPUESTOS GSE
SENSORES Y REPUESTOS NIDO PRO
SENSORES Y REPUESTOS PROSYSTEM AQUA
SENSORES Y REPUESTOS TROLMASTER
UNIDADES DE CONTROL DE CLIMATIZACIÓN
UNIDADES DE CONTROL DE RIEGO Y FERTIRRIGACIÓN
UNIDADES DE CONTROL DE TIEMPO E ILUMINACIÓN
UNIDADES DE CONTROL REMOTO
Productores
  • ADDITEQ ADDIPURE 9
  • ADJUST-A-WING 14
  • ADVANCED NUTRIENTS 194
  • AEROPONIK SYSTEMS 1
  • AGRICOOLTUR 15
  • AGRO TOP GARDEN 3
  • AGROLITE 5
  • AIR-POT SUPEROOTS 14
  • AIRFAN 24
  • ALPHA CAT TEST 4
  • ANSCE BIO 15
  • ANTIKA OFFICINA BOTANICA 17
  • APOGEE INSTRUMENTS 2
  • AQUA MASTER TOOLS 23
  • AQUABELLA ORGANICS 1
  • AQUILI 20
  • ARIZER 1
  • ATAMI B'CUZZ 25
  • AUTOPOT 90
  • BARNEY'S FARM 2
  • BIO NOVA 107
  • BIOBIZZ 94
  • BIOCANNA 21
  • BIODOR CONTROL CNB 6
  • BIOMAGNO 47
  • BIOTABS 23
  • BOSKKE 3
  • BOTANICAL HUNTERS 1
  • BOVEDA USA 22
  • BTM SIMBIOSIS 4
  • BUBBLEXTRACTOR & CHOCOLIZER 21
  • C3 INTERNATIONAL 1
  • CALIFORNIA LIGHTWORKS LED MADE IN USA 2
  • CAN-FILTERS 30
  • CANNA 94
  • CANNABRUSH 1
  • CARBONACTIVE 40
  • CCELL 1
  • CENTURION PRO TRIMMER 49
  • CLEAN LIGHT UV 9
  • CLI-MATE 20
  • CO2BOOST 6
  • CORNWALL ELECTRONICS 19
  • CULTIBOX 2
  • CVAULT europe 8
  • CYCLONE AIR FAN 9
  • DARK BOX 1
  • DIMLUX 72
  • DIRECT CARBON 1
  • DOTTO SEMENTI 6
  • DUTCH MASTERS HYDROPONICS 20
  • DUTCH PASSION 8
  • EASYGROW LTD 6
  • ENDOFRUIT 1
  • ENECTA 16
  • EPOCA 6
  • ETI SA 3
  • EXTRACTION LINE 5
  • FLORTIS 104
  • FLOWERMATE 1
  • FLUENCE BY OSRAM 4
  • FRAL DEUMIDIFICAZIONE 22
  • FROST X 6
  • G-LOCK 4
  • GARLAND 21
  • GAVITA 18
  • GENERAL HYDROPONICS EUROPE - GHE 14
  • GEOPONICA 1
  • GIB LIGHTING 6
  • GIORGIO BORMAC 1
  • GREEN HOUSE FEEDING 48
  • GRODAN 17
  • GRONEST POT VASI IN GEOTESSILE 34
  • GROTEK 1
  • GROVE BAGS 4
  • GROWDIRECTOR 1
  • GROWEAR 15
  • GROWMAX WATER 24
  • GSE - G SYSTEMS ENGINEERING 28
  • GUALALA ROBOTICS 5
  • GUANOKALONG 21
  • HAILEA 62
  • HANNA INSTRUMMENTS 1
  • HAQUOSS 2
  • HARVEST RIGHT 3
  • HELIOSPECTRA AB GROW LED 1
  • HEMNIA 7
  • HEMP NANOTECH BY NANOTECH SURFACE 6
  • HESI NL 33
  • HGA GARDEN 13
  • HM DIGITAL 15
  • HOLLAND FARMING 2
  • HOMEBOX 16
  • HOMEOPLANT- 5
  • HORTI 13
  • HORTILIGHT 1
  • HYDROFARM 1
  • IDROLABHYDROPONICS 8
  • IMPRESIND 7
  • INDOORLIGHT HID BALLAST 8
  • INDOORLINE 345
  • ITALIA CBD 4
  • JIFFY POT 9
  • JUJU ROYAL BY BIOBIZZ 14
  • KANNODOL 8
  • KENEX 11
  • KOPTER FLIES 2
  • LECA LATERLITE 1
  • LIGHTHOUSE CONTROLLED ENVIRONMENTS 4
  • LUMATEK 21
  • LUMEN KING 2
  • LURPE NATURAL SOLUTION 33
  • MAGICAL BUTTER 2
  • MAMA PUBLISHING 2
  • MAMMOTH GROWTEND 31
  • MASTER PRODUCTS 61
  • MEDICAL SEEDS MEDICAL NETS 29
  • METAGRO 3
  • METHOD SEVEN 34
  • MIC-FI BY ITALECO 1
  • MICOSAT CCS 11
  • MILLS NUTRIENTS 26
  • MILWAUKEE INSTRUMENT 43
  • MIXTRON 6
  • MYBATEC 3
  • NATUREN BY KB 2
  • NERABIOCHAR 6
  • NETAFIM IRRIFIT 22
  • NEWA AQUARIUM SYSTEMS 4
  • NIDO PRO 19
  • NUTSYSTEMS 40
  • OASE SRL 31
  • ONA-ODOR NEUTRALIZING AGENT 39
  • OPTICLIMATE 40
  • ORTO BIOLOGICO DOTTO SEMENTI 3
  • ORTOLED GROWLED 48
  • OSRAM 6
  • OXO 6
  • OZONE INDUSTRIE 2
  • PANDORA'S POT 8
  • PAPERHASH 8
  • PAPILLON BV 5
  • PEPPERSROLL 2
  • PHILIPS LIGHTING 4
  • PHONIX ORIGINAL 23
  • PLAGRON 128
  • PRESTO BIO 12
  • PRIMA KLIMA 47
  • PROSYSTEM AQUA EUROPE S.L. 9
  • PURE EXTRACT PARK 2
  • PURIZE FILTERS 4
  • PUROLYT 5
  • QNUBU 112
  • REWELL 4
  • ROLLER EXTRACTOR 3
  • ROMBERG 7
  • ROOT POUCH 1
  • ROYAL QUEEN SEEDS 10
  • SABOTEN 6
  • SANLIGHT LED 21
  • SECRET JARDIN 158
  • SECRET SMOKE 11
  • Sentera Europa NV 1
  • SICCE 6
  • SILENT SEEDS 1
  • SOLUX LIGHTING 16
  • STORZ & BICKEL 1
  • SUN SYSTEM 3
  • SUNFLOWER TRIMMER LTD 3
  • SUNMASTER - VENTURE LIGHTING 1
  • SYLVANIA 30
  • TECOPONIC CHILLER LINE 7
  • TEKTOS 1
  • TEMPO BOX 7
  • TERP BOOSTER 2
  • TERRA AQUATICA 150
  • TERRA-GREEN 8
  • THE KING OF GRINDER 20
  • THE NEUTRALIZER 2
  • THINKGROW BY TROLMASTER 17
  • TOM'S TUMBLER 30
  • TORUS HYDRO 4
  • TrimBin EU 5
  • TRIMPRO 13
  • TRIMSTATION 1
  • TROLMASTER 80
  • TWISTER TRIMMER 53
  • UEBER 7
  • UVONAIR OZONE AIR SYSTEM 7
  • VAPMAN gmbh 1
  • VDL 53
  • VENTS - VENTILATION SYSTEM 179
  • VERDEMAX 15
  • VITHAL ITAL-AGRO 5
  • WATER MASTER 3
  • WEEDLEZ 1
  • ZERUM NEUTRALIZZATORE DI ODORI 2
  • ZIP-ZAG BAGS 4
disponible

INDOORLINE - NIMA - MOBILFARM ONE WHEELS GROWROOM PREFABRICADO SOBRE RUEDAS | 750x250x240h cm

Bacalao. NM1005
Productor : INDOORLINE

¿Qué es MOBILFARM? MOBILFARM ofrece un entorno eficiente y versátil para el cultivo de cannabis medicinal, diseñado para maximizar la productividad y cumplir con altos estándares de...

Precio estándar
€84.058,00 IVA incluido (22%)
añadir a la cesta
Total : € 84058,00
 descuento adicional aplicado 0%
recalculando...
  • Descripción
  • Datos adicionales
  • También podría necesitar... 3

¿Qué es MOBILFARM?

MOBILFARM ofrece un entorno eficiente y versátil para el cultivo de cannabis medicinal, diseñado para maximizar la productividad y cumplir con altos estándares de calidad. Optimizado para la producción de madres y esquejes, garantiza unas condiciones de cultivo ideales gracias a sus avanzados sistemas de control climático e iluminación. Con MOBILFARM, los agricultores pueden cultivar con seguridad, respondiendo a las demandas del mercado con flexibilidad y fiabilidad.

¿Por qué elegir MOBILFARM?

Máxima eficiencia energética
MOBILFARM garantiza un aislamiento térmico de clase A. Esto significa minimizar la pérdida de calor y los costes energéticos asociados.

Control climático óptimo
Los MOBILFARM ofrecen un control climático superior, garantizando temperaturas constantes y condiciones ideales para el crecimiento de las plantas, independientemente del clima exterior.

Flexibilidad y modularidad
Los MOBILFARM se transportan y mueven fácilmente sin grúa sobre superficies de hormigón, ofreciendo una flexibilidad superior en comparación con las estructuras fijas y los contenedores.

Escalabilidad
Los MOBILFARM son ampliables: se pueden añadir nuevos módulos sin costosas reformas ni interrupciones operativas, adaptándose fácilmente a la demanda.

Seguridad yprivacidad
Los MOBILFARM ofrecen una gran seguridad y privacidad, con estructuras cerradas y supervisables que reducen el riesgo de robo y vandalismo, ideales para cultivos que requieren discreción.

Facilidad de instalación
La instalación de un MOBILFARM es rápida y sencilla, sin obras complejas, lo que permite iniciar el cultivo casi de inmediato y ahorrar tiempo.

En conclusión, cultivar en un MOBILFARM aislado térmicamente y fácilmente desmontable es una elección inteligente por su eficiencia, control y flexibilidad, garantizando un entorno de cultivo óptimo y adaptable.

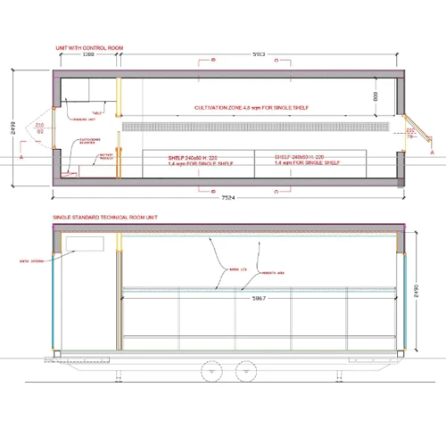
Características técnicas:

  • Dimensionesexteriores 7,5x2,5x 3,00h
  • Dimensiones interiores 7,5x2,5x 2,40h
  • Seguridad y limpieza: entrada con compartimento técnico y vestuario.
  • Superficie neta para cultivo madre: 9,20m2 en 2 niveles
  • Superficieneta para cultivo de esquejes en 2 etapas: 5,70m2 en 2 niveles
  • Número de esquejes enraizables cultivables: hasta 462
  • Número de es quejesenraizables cultivables: hasta 630 esquejes
  • La superficie de cultivo de esquejes puede aumentarse hasta un 100%.

Iluminación:

Potencia: 2700W
PPFD media madres: 450 μmol/m2/seg con GROLUX LINAR SYLVANIA regulable
PPFD media esquejes: 200 μmol/m2/seg.

Climatización:
Una unidad de frío/calor de 12000 BTU.

Deshumidificación:

Una unidad profesional, capacidad máxima: 64 litros/día.

Humidificación:
Sistema de ultrasonidos profesional.

Filtración de agua:
Ósmosis inversa de tres etapas con UVC.

Higienización del aire:
Sistema UVC.

Gestión y control:
Control local y remoto de luz, CO2, humedad, deshumidificación y climatización.

Fertilización con CO2:
Sistema de fertilización con gas (bombona no incluida).

Sistema de fertilización:
Sistema A+B+C+pH con control local y remoto.

Seguridad y monitorización:
Alarmas de CO2, VPD, fugas de agua, humo y videovigilancia interna.

Ventilación:
Desertificación del aire y ventilación interna.

Exclusiones:
Planta de fertilización (a cotizar según necesidades del cliente).
Productos de producción.
Gastos de transporte y montaje in situ.
Dificultades logísticas imprevisibles.

Con estas características de última generación, ofrecemos un entorno de cultivo óptimo que puede gestionarse tanto localmente como a distancia para obtener la máxima eficacia y productividad.

Consumo eléctrico:
Consumo eléctrico teórico de la planta: 4.000W
Consumo eléctrico máximo del aire acondicionado: 1500W

PAREDES
  • Estructura portante con perfiles de acero galvanizado de 140 espesores Estructura ligera de acero
  • Barrera contra el viento
  • Capa de lana mineral de 80 mm
  • Paredes exteriores con panel sándwich de 25 mm con acabado Ral
  • Paredes interiores con panel sándwich de 30 mm de espesor liso Ral 9010


CUBIERTA

  • Estructura portante con perfiles de acero galvanizado de 140 mm de espesor Marco de acero ligero
  • capa de lana mineral de 80 mm
  • panel sándwich de 60 mm de espesor
  • Fijación de revestimiento de pizarra de doble capa con soldadura térmica
  • Zócalo perimetral de aluminio

BASE

  • Estructura base en C galvanizada de 30 cm de espesor
  • Fijación de doble eje con 4 ruedas
  • Chapa de acero colaborante de 30mm de espesor
  • Losa de fibrocemento fijada mecánicamente
  • Fijación del suelo de linóleo
  • Rejilla central de acero para el drenaje del agua
  • Barra de tracción simple para manipulación

TRANSPORTE

  • Transporte mediante remolque de plataforma baja en gálibo

Para proyectos, asesoramiento o más información, escriba a info@indoorline.com

NM1005
/
GROWBOX Y GROWROOM, LABORATORIOS PREFABRICADOS
  • 250x750x240 cm (WxLxH)
  • 1
NM1005
/
GROWBOX Y GROWROOM, LABORATORIOS PREFABRICADOS
NM1002 - INDOORLINE - NIMA - MOBILFARM ONE MOTHER Y GROWROOM PREFABRICADOS | 750x250x240h cm
INDOORLINE - NIMA - MOBILFARM ONE MOTHER Y GROWROOM PREFABRICADOS | 750x250x240h cm
Bacalao. NM1002
€ 73.078,00 IVA incluido (22%)
NM1003 - INDOORLINE - NIMA - MOBILFARM TWO GROWROOM PREFABRICADO | 15x2,5x2,4h m
INDOORLINE - NIMA - MOBILFARM TWO GROWROOM PREFABRICADO | 15x2,5x2,4h m
Bacalao. NM1003
€ 130.540,00 IVA incluido (22%)
NM1004 - INDOORLINE - NIMA - MOBILFARM CRIADERO DE DOS RUEDAS PREFABRICADO SOBRE RUEDAS | 15x2,5x2,4h m
INDOORLINE - NIMA - MOBILFARM CRIADERO DE DOS RUEDAS PREFABRICADO SOBRE RUEDAS | 15x2,5x2,4h m
Bacalao. NM1004
€ 151.280,00 IVA incluido (22%)

Domande Frequenti

Il prodotto è disponibile?

Contattaci per disponibilità
Productos de la misma categoría
LAB0011 - INDOORLINE - LABORATORIO VERTICAL PREFABRICADO 960 PLANTAS - NFT | 1200x240x270h cm
INDOORLINE - LABORATORIO VERTICAL PREFABRICADO 960 PLANTAS - NFT |...
Bacalao. LAB0011
€109.177,80 IVA incluido (22%)
NM1003 - INDOORLINE - NIMA - MOBILFARM TWO GROWROOM PREFABRICADO | 15x2,5x2,4h m
INDOORLINE - NIMA - MOBILFARM TWO GROWROOM PREFABRICADO | 15x2,5x2,4h...
Bacalao. NM1003
€130.540,00 IVA incluido (22%)
LAB009 - INDOORLINE - LABORATORIO PREFABRICADO VERTICAL GS 480 PLANTAS - HIDROPONICO - 3 NIVELES | 1200x240x270h cm
INDOORLINE - LABORATORIO PREFABRICADO VERTICAL GS 480 PLANTAS -...
Bacalao. LAB009
€83.679,80 IVA incluido (22%)
GBOXFARM - GEOPONICS - INDOOR FARM BOX | CONTENEDOR 12x2,4x2,8m
GEOPONICS - INDOOR FARM BOX | CONTENEDOR 12x2,4x2,8m
Bacalao. GBOXFARM
€79.300,00 IVA incluido (22%)
NM1002 - INDOORLINE - NIMA - MOBILFARM ONE MOTHER Y GROWROOM PREFABRICADOS | 750x250x240h cm
INDOORLINE - NIMA - MOBILFARM ONE MOTHER Y GROWROOM PREFABRICADOS |...
Bacalao. NM1002
€73.078,00 IVA incluido (22%)
LAB008 - INDOORLINE - LABORATORIO PREFABRICADO VERTICAL GS 160 PLANTAS - HIDROPONICO | 1200x240x270h cm
INDOORLINE - LABORATORIO PREFABRICADO VERTICAL GS 160 PLANTAS -...
Bacalao. LAB008
€68.673,80 IVA incluido (22%)
LAB007 - INDOORLINE - LABORATORIO PREFABRICADO GS 160 PLANTAS - HIDROPONICO - 2 ALAS | 1200x240x270h cm
INDOORLINE - LABORATORIO PREFABRICADO GS 160 PLANTAS - HIDROPONICO -...
Bacalao. LAB007
€68.673,80 IVA incluido (22%)
NM1004 - INDOORLINE - NIMA - MOBILFARM CRIADERO DE DOS RUEDAS PREFABRICADO SOBRE RUEDAS | 15x2,5x2,4h m
INDOORLINE - NIMA - MOBILFARM CRIADERO DE DOS RUEDAS PREFABRICADO...
Bacalao. NM1004
€151.280,00 IVA incluido (22%)
LAB005 - INDOORLINE - LABORATORIO VERTICAL PREFABRICADO 480 PLANTAS - NFT | 600x240x270h cm
INDOORLINE - LABORATORIO VERTICAL PREFABRICADO 480 PLANTAS - NFT |...
Bacalao. LAB005
€59.279,80 IVA incluido (22%)
HORSTOR - AGRICOOLTUR - HORTUS STORE 30 | MÓDULO DE CULTIVO URBANO TRANSPORTABLE
AGRICOOLTUR - HORTUS STORE 30 | MÓDULO DE CULTIVO URBANO...
Bacalao. HORSTOR
€58.560,00 IVA incluido (22%)
IndoorlinePoint - Rete rivenditori autorizzati
footer-logo

Venta al por menor y al por mayor de productos de jardinería

P. IVA 09279770011 / C.F. 09279770011
Via Lorenzo Perosi, 3 - 10040 Volvera (Torino) Italia
Tel. 0119625393

Categorías

  • HEADSHOP
  • ACCESORIOS
  • COSMÉTICOS, ACEITES Y HIERBAS
  • FERTILIZANTES
  • GERMINACIÓN Y ESQUEJES
  • GROWBOX Y GROWROOM
  • HIDROPONÍA Y RIEGO
  • ILUMINACIÓN Y TEMPORIZADOR
  • INSTRUMENTOS DE MEDICIÓN
  • KIT DE CULTIVO
  • MACETAS Y BANDEJAS
  • PRODUCTOS DE DEFENSA PARA PLANTAS
  • SEMILLAS
  • SUELOS, SUSTRATOS Y CUBIERTAS VERDES
  • TRATAMIENTO DE AIRE Y CLIMATIZACIÓN
  • TRIMMER,SECADO Y CONSERVACIÓN
  • UNIDADES DE CONTROL Y AUTOMATIZACIÓN

Información

  • Hogar
  • Noticias
  • Métodos de pago
  • revendedores
  • Productores
  • Contactos

Scopri

  • FAQ
  • Ofertas
  • novedad
© 2000 - 2026 Indoorline Srl - Reservados todos los derechos - política de privacidad - Configuración de cookies
Desarrollo de software web
  • Visa
  • Mastercard
  • PayPal

Búsqueda avanzada